



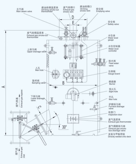
LYF vertical thread tube composite boiler use pin tubes or thread tube as thermal transferring component which will according to the design. The oil fired section evaporation is 0.25t/h-5.0t/h, evaporation of exhaust gas section can be changed as per exhaust output and relative parameters to meet shiper's requirements.
LYF vertical thread tube composite boiler dimension contains thermal insulating layer. Dimension and location can be changed according to user's actual requirement. The data in the table are only for your reference and the company reserves the right to make changes.
Performance Advantages
1.Enegy-efficient
1.1 Pin tube has the characteristics of high efficiency and low exhaust temperature.
1.2 Use the exhaust gas from the main engine has high economic cost, and the exhaust pipe has the muffler function at the same time.
1.3 According to the steam demand to starting the oil fired section running which will be automatically controlled.
2. Safety and reliable
2.1 Water lever control for high level alarm / water pump stop or start / low level alarm / double control of too low level to stop burning.
2.2 High temperature and high pressure control
2.3 Burner control for manual and automatic control mode.




















