



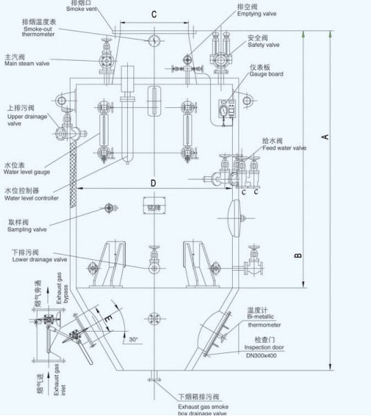
Gas turbine exhaust heat boiler is also called main engine exhaust gas economizer.
Adopting optimum structure and design, layout is reasonable, high efficiency and energy saving.
Adopting thread tube, improve the heat transfer efficiency and has a muffler effect.




















