

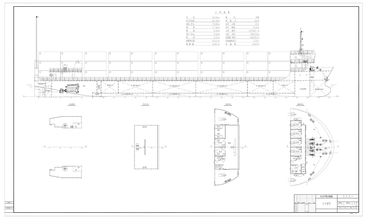
3280 DWT Deck Container Ship
Length Overall: 83.44 M
Length D.W.L.: 81.00 M
Length BTW Perpendiculars: 79.80 M
Breadth Moulded: 21.60 M
Depth Moulded: 4.40 M
Design Draft: 3.40 M
Design Speed: 10.6 KN
Complement: 13 P
Service Area: Coastal Area
Main Engine Model: 6230ZC-4
Main Engine Power: 960 KW * 2 Sets
Gearbox Model: GWS39.41, 3.50:1
Qty Of Total Containers: 238 TEU